Hussey House
at Tybee Island
Toggle navigation
Hussey House
Home
The House
Introduction
Layout & Features
Main floor plan
Lower floor plan
Pictures
Amenities
Why Hussey House
Availability
Overview
Booking Details
Booking your stay
Seasonal Rates
Rental Agreement
Trip insurance
Local Information
Weather & Tides
Getting to Tybee
Things not to do
Before you go
About
About Us
Privacy Statement
Links
Contact Us
Hussey House
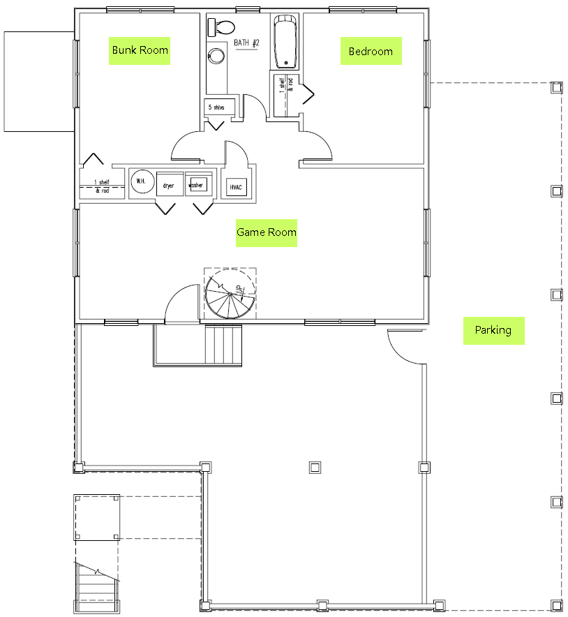
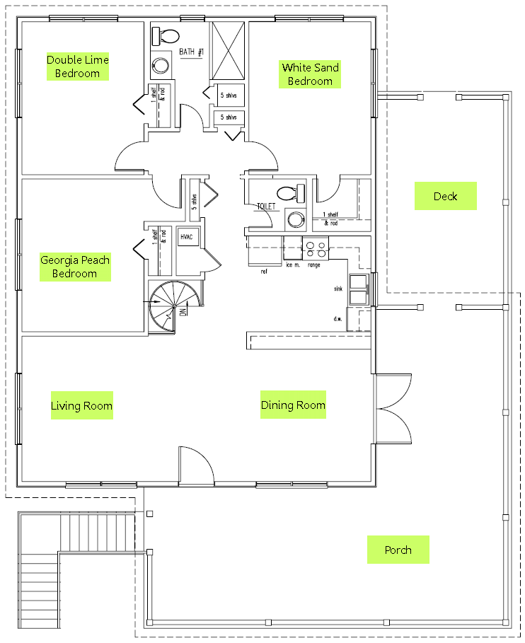
Floor Plan
Main Floor
Lower Floor
Have
Questions?
Name:
Email:
Message:
Captcha:
+
=
Submit